DEMO
Ingreso de Usuarios
E-mail
Contraseña
INGRESAR
Ingresando...
Olvidé mi contraseña!
×
¿Qué estás buscando?
BUSCAR!
Acceso Usuarios
JARDINYA.COM
DISEÑOS
VIVEROS
JARDINEROS
QUIÉNES SOMOS
PREGUNTAS FRECUENTES
BLOG
CONTACTO
DISEÑOS
PROYECTOS
¿CÓMO FUNCIONA?
PRECIOS
QUIERO
MI DISEÑO
JARDINYA.COM
DISEÑOS
VIVEROS
JARDINEROS
DISEÑOS
PROYECTOS
¿CÓMO FUNCIONA?
PRECIOS
BLOG
CONTACTO
QUIERO
MI DISEÑO
Ingreso de Usuarios
E-mail
Contraseña
INGRESAR
Ingresando...
Olvidé mi contraseña
Aún no estoy registrado
Acceso Jardineros y Viveros
DISEÑOS
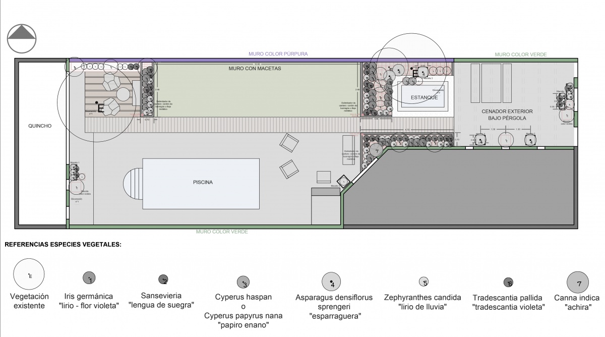
“Proyecto de paisajismo JSF”
Proyecto de paisajismo JSF
Santa Fe, Argentina - 170 m2
- Intervención y cambio de color en muros
- Reubicación de plantas existentes
- Incorporación de nuevas especies vegetales que aportan contrastes de texturas y colores
Planta paisajística
Planta técnica
Detalle muro
Especies vegetales
Ir a Diseños
Desarrollado por
ARKANTIR
Comunicación de Marcas